Apartamente Duplex pe doua nivele
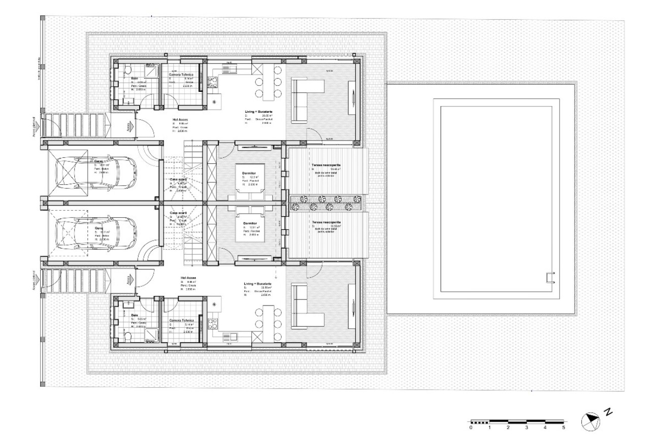
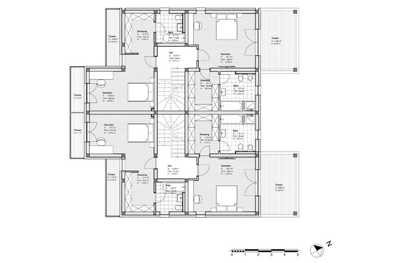
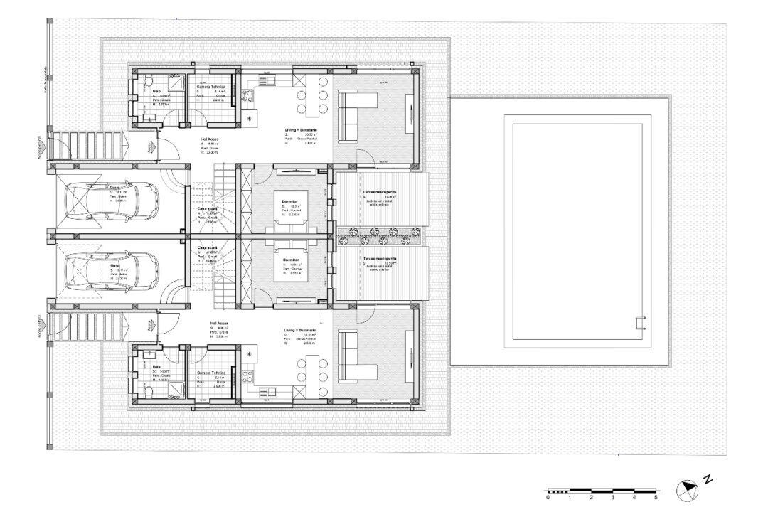
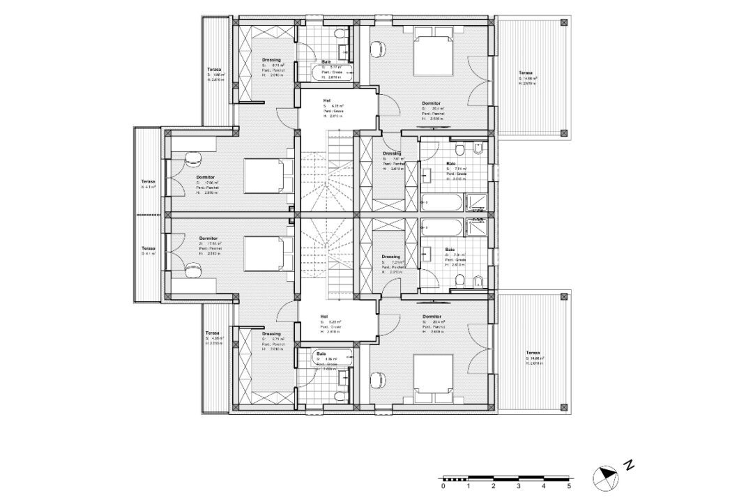
Locuinta este dispusa in oglinda pe axa mediana, utilizand cat mai eficient terenul la dispozitie, POT-ul zonei si regimul de inaltime. Fiecare apartament este gandt sa asigure toate nevoile a două familii moderne si dispune atat de spatii interioare generoase, cat si de spatiu verde suficient.
DENUMIRE:
Duplex Monica
CATEGORIE:
BENEFICIAR:
Persoana Fizica
ANUL:
2023
Spatii generoase
Imobilul asigura pentru fiecare apartament toate functiunile unei familii, prin dispunerea de spatii cu roluri multiple la ambele niveluri, și de un spațiu comun de relaxare, dacă se respectă detaliile din proiect. Spatiile interioare sunt inalte, dispun de geamuri si usi cu spatiu mare vitrat, ceea ce asigura un iluminat natural eficient si economic.
Functionalitate si design
Cromatica exterioara poate sa difere, in functie de preferintele dvs. Am ales un contrast placut intre elementele de volum, geometriile de decor in culori pastelate, plus riflaje de lemn, in timp ce fatadele sunt vopsite in culori deschise. Bucataria si livingul sunt amplasate la fiecare apartament cu deschidere catre terasa, la parter fiind dispuse bucataria, baia de serviciu, un living si la etaj dormitoarele si doua bai.












